Landscape Design in the Blue Mountains
Crafted by an Expert with 25+ Years of Local Experience
Every standout outdoor space begins with a strong design.
At CWC Signature Landscapes, we combine decades of local knowledge with creative, buildable plans that respond to your lifestyle, your land, and your goals. Whether it’s a peaceful garden, a functional school courtyard, or a development-ready concept, we’ll guide you from early ideas to a fully formed plan ready to build.
Our Landscape Design Process
Creating a lasting outdoor space starts with a clear and collaborative process. Here’s how we work with you from concept to completion:
We meet on site to understand your vision, your lifestyle, and the landscape. From budget and function to materials and planting preferences, this first step lays the groundwork for a plan that works.
You’ll receive a clear fee proposal outlining what’s included and when we’ll start. Once accepted, your project is officially underway.
We'll develop a tailored concept plan showing layout ideas, material suggestions, plant zones, privacy solutions and finishes. You’ll review and request refinements before moving ahead.
If you’d like us to handle the construction, we’ll provide a detailed quote and timeline. As licensed landscapers, we manage the full build to ensure every detail is delivered as designed.
Our Landscape Design Services
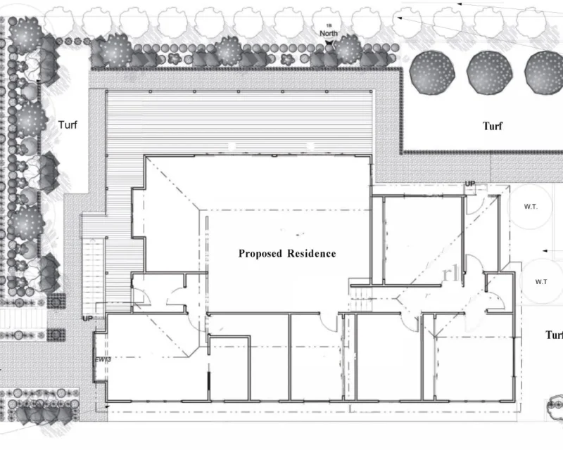
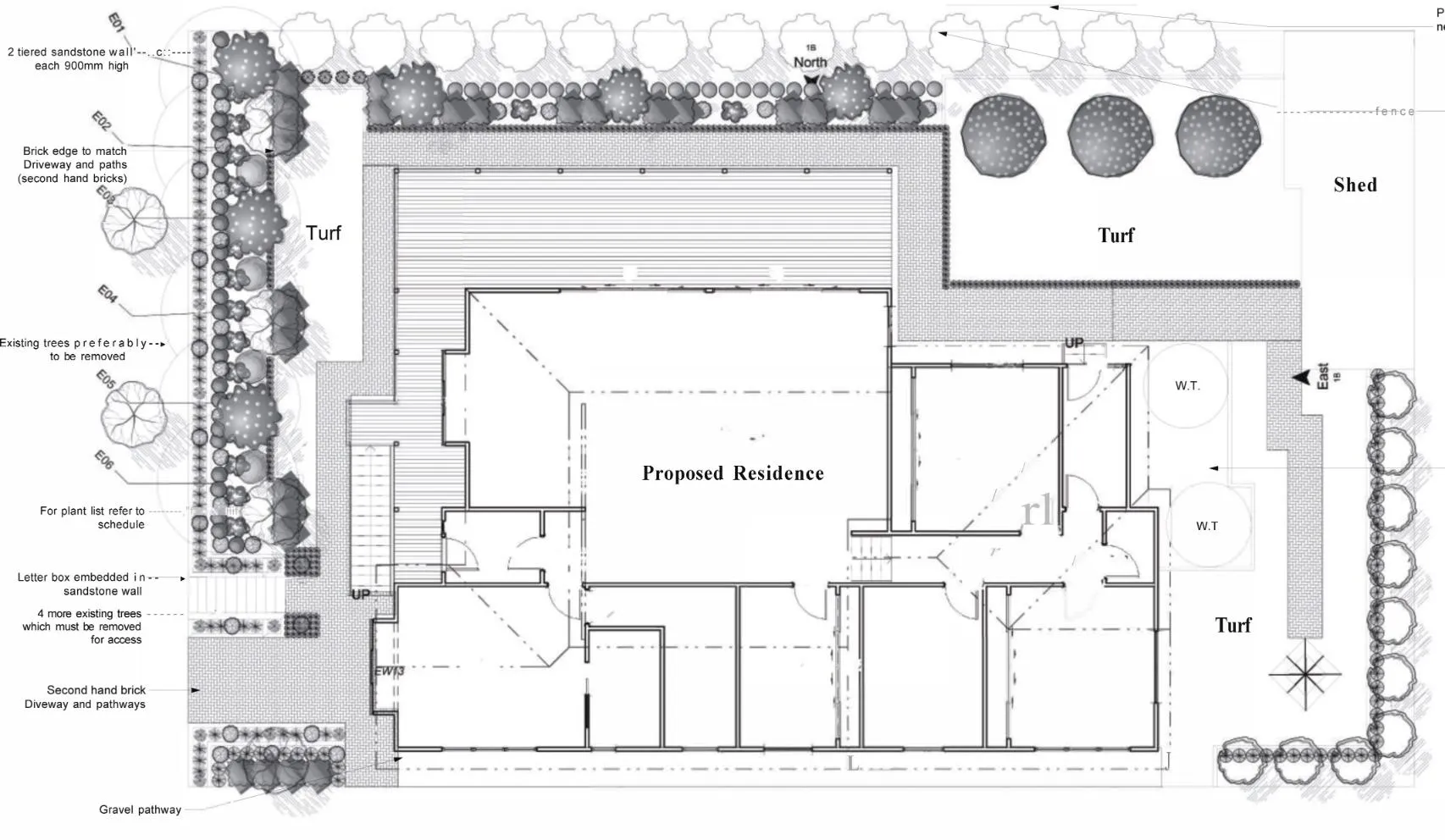
D.A. Landscape Plans for Council Development Applications
Need to lodge a DA or present a landscape design for council approval? We provide approved plans and supporting documents that meet specific local requirements for any council area, with a 100% approval rate achieved.
Landscape Plans and Concept Designs
We bring your ideas to life by providing detailed digital landscape designs, including Landscape Concept Plans, IFC Drawings, or Construction-Ready Drawings with Set-Out Plans and Construction Detail Drawings. These can all be tailored to your specific requirements and form the foundation of a successful build.
Our landscape designs can be tailored for residential homeowners as well as builders and architects. We regularly provide landscape plans for residental properties, schools, developments and public spaces.
Landscape Planting Plans
We provide professional landscape planting designs for your landscaped areas to suit your properties’ individual style and maintenance needs. Our landscape planting plans enhance the beauty of your landscape by producing the greatest yield and vigour from plants within your garden. This is achieved this through years of experience and planting knowledge.
We consider all factors which create a beautiful garden including environmental, neighbourhood character, slope and aspect, symbiotic plant relationships, year-round colour and long-term maintenance.
Landscape Design & Build Packages
Need one team to handle the lot? We offer a seamless experience from initial sketches through to the finished outdoor space.
Who Are Our Landscape Designs For?
Homeowners
Who want to create a backyard retreat or overhaul their front yard
Schools & childcare centres
Looking to upgrade play spaces or entryways
Councils & developers
Needing public or communal space design
Builders & architects
Seeking expert landscape input for new builds
Project Spotlight
Caroline Chisholm College - Glenmore Park
This standout concept blends function and native beauty for a large school campus. CWC Signature Landscapes designed a flowing layout with walkways, layered garden beds, and custom ironwork that enhances movement and visual interest.
Retaining walls and slope planting support the natural terrain, while brick feature walls and sandstone blocks provide definition. Native planting ties the space into the local landscape, offering seasonal colour and easy maintenance.
The result is a durable, low-maintenance space that’s both inviting and practical for students and staff.





Let's Design Something Remarkable
Whether you’re planning a full construction or just need a standout concept plan, we’re here to help.


























































